top of page

CORNWALL
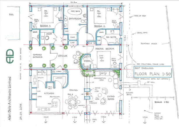
2 Californian style houses in lush Cornish woodland
We were fortunate to be appointed as designers for these 2 new houses.
Having consulted closely with the client we conceived and produced our final designs and secured planning permission.
The craftsman builder client is an admirer of Eichler, who was in turn, an admirer of Frank Lloyd Wright.
The lush wooded setting has a sub-tropical feel, and so we were very happy that we eventually gained approval, and a little piece of California could arrive in Cornwall.
bottom of page





















